Продолжаем публиковать немного сокращенный адаптированный перевод статьи «Описание камнепадов и инженерная защита от них: обзор» [1], написанной группой ученых из Швейцарии, Италии и Франции. Эта большая работа была опубликована в 2011 году в рецензируемом международном интернет-журнале NHESS (Natural Hazards and Earth System Sciences – «Природные опасности и науки о Земле»), издаваемом под эгидой Европейского союза специалистов в области наук о Земле (EGU – European Geosciences Union).
Указанная статья находится в открытом доступе в соответствии с лицензией Creative Commons Attribution 3.0 (CC BY 3.0), поэтому ее можно использовать в некоммерческих и коммерческих целях, переводить или изменять при условии ссылки на первоисточник и указания типа изменений.
Сегодня представляем четвертую часть переведенной работы, посвященную таким мерам защиты от камнепадов, как земляные дамбы, траншеи и противокамнепадные галереи. Отметим, что нумерация рисунков и формул соответствует таковой в оригинальной статье.
Консультационную помощь редакции при подготовке перевода оказали специалисты российского представительства компании Trumer Shutzbauten, разрабатывающей и производящей одни из наиболее надежных в мире систем инженерной защиты от опасных геологических процессов, в том числе от камнепадов.
Если в зоне, подверженной опасности камнепадов, находятся жилые дома, общественные здания, дороги или другие объекты инфраструктуры, то необходимы соответствующие меры их инженерной защиты, обзор которых и приводится в этой части.
Долгое время оценки ударных нагрузок, вызванных камнепадами, основывались только на эмпирических зависимостях, полученных по результатам экспериментальных наблюдений. Затем с помощью теоретических соображений, принимающих поведение грунта упругим, пластическим или упругопластическим, были разработаны другие формулы. В первом семействе зависимостей, полученных в рамках теории упругого контактного взаимодействия Герца, принимается, что жесткий шар воздействует на упругую среду (Goldsmith, 1960; Japan Road Association, 1983; Lang, 1974; Tonello, 1988). Другие уравнения основаны на пластическом или упругопластическом поведении грунта (Azimi, Desvarreux, 1988; Habib, 1976; Heierli, 1984; Lang, 1974; Tonello, 1988). Незадолго до публикации настоящей работы были получены формулы на основе проникновения недеформируемых остроносых снарядов в бетонные и грунтовые материалы (Pichler et al., 2005). Примерно в последнее десятилетие перед выходом данной статьи много усилий было посвящено численному моделированию воздействий на противокамнепадные сооружения с использованием метода конечных элементов (МКЭ) и метода дискретных элементов (МДЭ) (Bertrand et al., 2006; Calvetti, 1998; Calvetti et al., 2005; Magnier, Donze, 1998; Masuya, Kajikawa, 1991; Nakata et al., 1997; Nicot et al., 2007; Peila et al., 2002, 2007; Plassiard et al., 2004). Весьма перспективным для изучения таких проблем представляется МДЭ при условии, что сначала будет выполнена тщательная калибровка параметров.
Для сбора данных по воздействию камнепадов на защитные сооружения, а затем для калибровки параметров необходимы экспериментальные исследования. Для определения демпфирующей способности подушек на крышах противокамнепадных галерей, необходимого для дальнейшего проектирования, был проведен ряд полномасштабных и полумасштабных экспериментов. При их выполнении на бетонные плиты, покрытые различными поглощающими энергию ударов материалами, с разной высоты сбрасывали бетонные элементы, различающиеся по весу и по форме (Calvetti et al., 2005; Chikatamarla, 2006; Labiouse et al., 1996; Montani-Stoffel, 1998; Murata, Shibuya, 1997; Sato et al., 1996; Schellenberg et al., 2008; Yoshida et al., 1988). Другие серии аналогичных опытов проводились на слоях гравия (Pichler et al., 2005), земляных дамбах (Blovsky, 2002; Burroughs et al., 1993; Lepert, Corte, 1988; Peila et al., 2002; Yoshida, 1999) и композитных конструкциях (Lambert et al., 2009; Lorentz et al., 2006).
Параметрический анализ, выполненный на основе этих экспериментов, позволил определить наиболее важные факторы и количественно оценить их влияние на силу удара. Они связаны с падающим железобетонным элементом (его массой, формой) и его кинематикой (скоростью и углом удара), а также со слоем поглощающего силу ударов материала (его толщиной, степенью уплотнения). При этом именно для противокамнепадных галерей было установлено, что ударное воздействие на основную конструкцию также зависит от ее жесткости.
Большинство вышеупомянутых исследований дало количественные данные:
Собранные данные позволили получить информацию о передаче энергии во время удара и о силе, действующей на конструкцию. В результате были выведены формулы для оценки сил в целях усовершенствования проектов защитных сооружений (SBB, 1998 и др.). Однако эти результаты и формулы надо интерпретировать с осторожностью, поскольку толщина поглощающей энергию удара подушки и граничные условия сильно влияют на динамику взаимодействия (Calvetti, 1998; Montani-Stoffel, 1998).
Численное моделирование ударных воздействий при тщательной калибровке на основе экспериментальных данных может помочь лучше понять и количественно оценить потери кинетической энергии камнем за счет поглощающей силу удара подушки. Это также может поспособствовать оценке влияния различных параметров, которые не могли быть изучены во время экспериментов (или были изучены только в ограниченном диапазоне значений), и усовершенствованию проектов защитных сооружений.
Создание земляных дамб и траншей относится к квазиестественным противокамнепадным мерам. Они являются одними из самых эффективных, поэтому должны с большей вероятностью использоваться для защиты постоянных зданий. Земляные дамбы способны выдерживать высокие энергии удара, например 20 МДж, как показывает практика. Однако значительные поперечные сечения дамб и траншей требуют наличия довольно большой площади перед охраняемым объектом.
Если эффективность работы таких противокамнепадных систем, как барьеры или галереи, достаточно хорошо известна, то для обеспечения надежности земляных дамб необходимо ответить на следующие вопросы.

Рис. 10. Замедление камня и глубина его проникновения в уплотненный грунт разной толщины при ударах с разной скоростью
Для оптимизации размеров земляных дамб необходимы дальнейшие полномасштабные испытания их конструкций. Кое-что в этом направлении уже делается. Так, было описано поведение укрепленных грунтовых дамб с шириной основания 5 м и высотой около 4,5 м (Peila et al., 2002, 2007). Глубина проникновения в них железобетонных снарядов составляла 0,6–1,1 м при энергии удара от 2 400 до 4 200 кДж. Авторам настоящей статьи также известны, например, обзор методов проектирования земляных дамб (Lambert, Bourrier, 2011) и пример проектирования противокамнепадной грунтовой дамбы (Baumann, 2008).
Существует множество различных типов проектов галерей для защиты от камнепадов (рис. 11). Например, в Швейцарии наиболее широко распространены монолитные железобетонные конструкции галерей, покрытые амортизирующим слоем (Schellenberg, Vogel, 2005).
Рис. 11. Различные типы конструкций противокамнепадных галерей (жесткие основные конструкции показаны черным и белым цветом, амортизирующий материал – серым): а – железобетонная плита; б – железобетонная арка; в – монолитная железобетонная конструкция; г – композитная конструкция из стали и железобетона (Vogel et al., 2009)
Противокамнепадные галереи являются подходящими защитными мерами для небольших и четко определенных зон, подверженных частым камнепадам средней величины (Jacquemoud, 1999). Галерея может быть решением для защиты от частых низкоэнергетических событий с низкими затратами на техническое обслуживание (удаление скопившихся на крыше камней через определенные промежутки времени), хотя она может обеспечить защиту и от высокоэнергетических ударов.
Рабочий диапазон энергий ударов для противокамнепадных галерей, по оценкам, составляет до 3 000 кДж (ASTRA, 2003). Однако, основываясь на работах, опубликованных незадолго до выхода настоящей статьи, в которых основное внимание уделялось либо улучшению демпфирующих свойств подушечного слоя, увеличивающего пределы применимости всего сооружения, либо добавлению рассеивающих энергию опор, можно сделать вывод, что галереи могут обеспечить защиту от ударов до 5 000 кДж (Vogel et al., 2009).
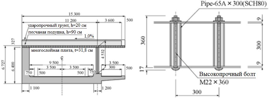
В Японии была оценена эффективность композитных конструкций галерей из стали и железобетона (рис. 12, Maegawa et al., 2003) и композитных многослойных конструкций с высокопрочными болтовыми соединениями (рис. 13, Konno et al., 2008). Они вполне могут применяться в будущем в конкретных условиях.
Рис. 12. Полномасштабный эксперимент с падением железобетонного снаряда на композитный сталежелезобетонный противокамнепадный навес (Maegawa et al., 2003) (а) и противокамнепадная галерея с рассеивающей энергию воздействий системой опор в альпийском курортном регионе Валь д’Арли во Франции (Masuya, 2007) (б)
Рис. 13. Композитная сталежелезобетонная конструкция противокамнепадной галереи (Konno et al., 2008)
Подушечный слой
Основная функция подушечного слоя – амортизирующая (Jacquemoud, 1999). Если бы его не было, то волны от ударов о железобетонные конструкции могли бы привести к их повреждениям (даже удар меньшей интенсивности, чем несущая способность конструкции, мог бы вызвать отслоение бетона на потолке галереи (Herrmann, 2002).
Подушечный слой также вызывает диссипацию части энергии удара, распределяет контактные напряжения, уменьшает пиковую нагрузку на основную защитную конструкцию, хотя при этом увеличивает длительность воздействия. По экономическим соображениям для создания подушки часто используется доступный местный гранулированный материал, в то время как, например, в Японии обычно применяется песок (Ishikawa, 1999).
Динамическая сила Pmax, приложенная к верхней части подушечного слоя при падении на него камня, определяется следующим эмпирическим уравнением (Montani-Stoffel, 1998):
Рис. 14. Альтернативные амортизирующие конструкции: а – серия коробчатых конструкций типа габионов, заполненных пеностеклом (Schellenberg, 2008); б – многослойная амортизирующая конструкция типа «сэндвич» из железобетонных плит и шин (Lorentz et al., 2008)
Другим подходом к рассеиванию энергии является система PSD (Pare-blocs Structurellement Dissipantes – «конструктивно рассеивающая защита от камнепадов») без подушечного слоя, предложенная во Франции и показанная на рисунке 12, б. Жесткая плита подвергается непосредственному удару, но в ее опоры вмонтированы энергопоглощающие устройства (Tonello, 2001). Опубликованы результаты тестирования такой конструкции по шкале 1/3 (Berthet-Rambaud, 2004).
Оценка поведения противокамнепадных галерей при ударах
Незадолго до написания настоящей статьи были опубликованы рекомендации по проектированию противокамнепадных галерей в Швейцарии и Японии (ASTRA, 2008; Japan Road Association, 2000). В соответствии с ними должна применяться статическая эквивалентная сила, которая в основном зависит не только от массы и скорости падающего камня, но и от геотехнических условий амортизирующего слоя. Использование этого подхода является простым для практикующих инженеров, но имеет трудности, связанные с учетом сложных динамических процессов во время удара. На этот счет имеются публикации с кратким изложением более старых формул для силы удара (Montani-Stoffel, 1998) и со сравнением различных методов расчетов (Casanovas, 2006).
На основе системы со многими степенями свободы (SMDF – System with Multiple Degrees of Freedom) для ударных нагрузок (Comite-Euro-International du Beton, 1988) была предложена новая аналитическая модель для проектирования противокамнепадных галерей, которая позволяет прогнозировать разрушения как при сдвиге, так и при изгибе (Schellenberg et al., 2008, рис. 15).
Рис. 15. Система со многими степенями свободы: от сечения противокамнепадной галереи до определения модели вместе с соотношением «сила – смещение пружин» (а, б) для амортизирующего слоя (в); поведения при сдвиге (г); общей жесткости на изгиб (д) (Schellenberg,Vogel, 2009)
Изменения усилий в пружине во времени выводятся из уравнений движения с заданными массами и свойствами пружин. Пиковые нагрузки являются результатами, основанными на показателях эффективности, и могут быть сопоставимы с сопротивлением в критических сечениях плиты.
С помощью этой модели были получены значения соотношений между максимальными усилиями и несущей способностью при продавливании (η2) и при разрушении при изгибе (η3), что привело к необходимости использования итерационного процесса для проектирования сооружения. Указанная процедура особенно хорошо подходит для оценки существующих противокамнепадных галерей. На рисунке 16 показаны значения указанных соотношений, достигнутые при падении с разной высоты железобетонных блоков разной массы на галерею Аксен-Сюд в Швейцарии. Будущие оценки зависимостей «сила удара – проникновение камня в подушечный слой» могут улучшить эту модель.
Рис. 16. Несущая способность противокамнепадной галереи Аксен-Сюд в Швейцарии при ударах железобетонных блоков разных масс (Schellenberg, 2009)
В последние годы перед публикацией настоящей статьи были достигнуты значительные успехи в области численного моделирования, которые призваны облегчить проектирование строительных конструкций (Kishi et al., 2009; Masuya, Nakata, 2001). Численное моделирование позволяет детально оценить конструкцию и ее реакцию на воздействие камнепада (рис. 17). Однако этот подход требует наличия экспериментальных данных для калибровки и значительных ресурсов, что ограничивает его применение на практике. Тем не менее такие усилия полезны для разработки руководств по проектированию и для оценки критических сечений и влияния параметров.
Рис. 17. Общий вид модели для конечноэлементного анализа поведения противокамнепадной галереи при ударе железобетонным блоком и полученные формы трещинообразования для различных случаев нагружения (Kishi et al., 2009)
Несмотря на успехи в понимании поведения противокамнепадных галерей при ударах, все еще существуют большие неопределенности в отношении описания проектных (расчетных) ситуаций. Поэтому привлекательными инструментами являются вероятностные методы, с помощью которых можно лучше количественно оценить неопределенности. Кроме того, будущие разработки в областях проектирования новых противокамнепадных галерей или анализа эффективности существующих сооружений могут включать оценки вероятности возникновения нарушений в разных случаях и выбор проектных ситуаций на основе общих критериев допустимого риска.
—
В следующей части статьи, которая будет опубликована через неделю, речь пойдет о таких мерах защиты от камнепадов, как гибкие противокамнепадные системы и леса.